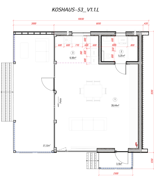
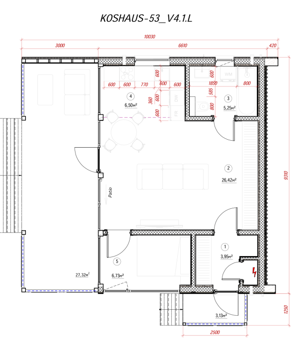
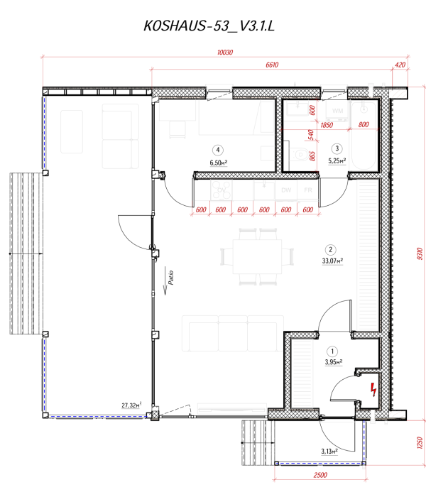
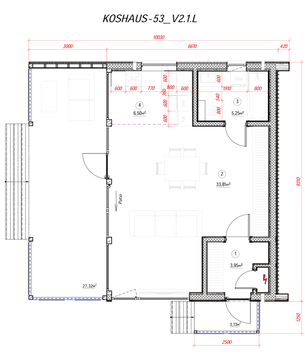
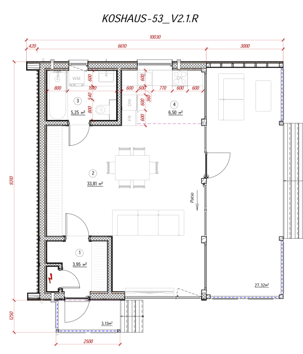
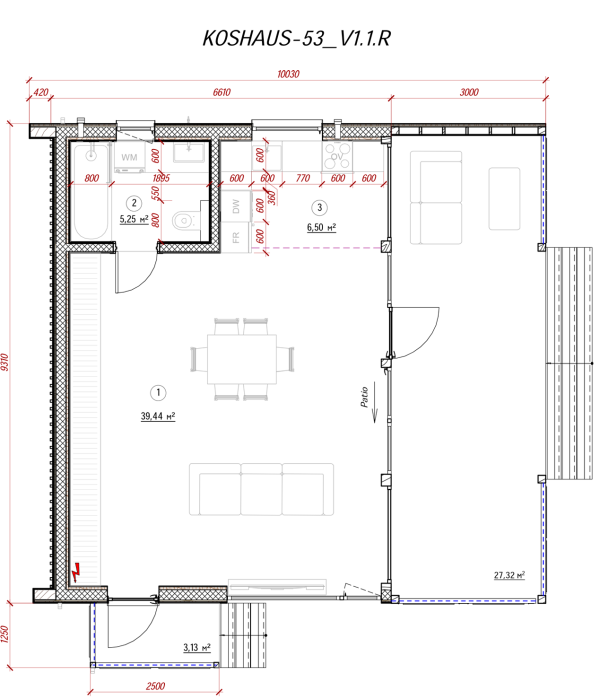
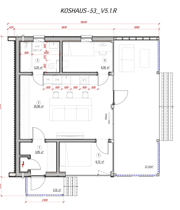
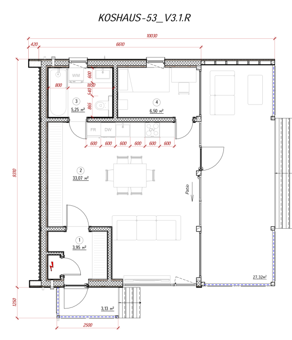
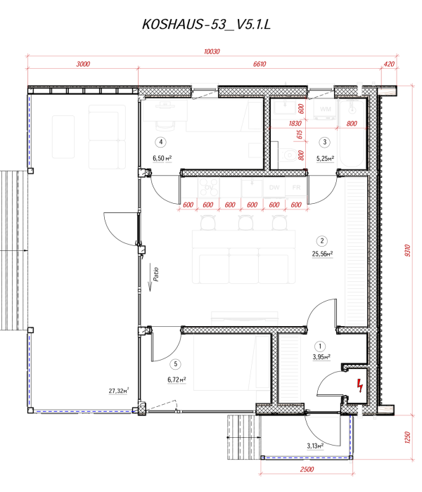
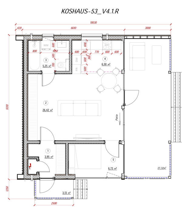
В KOSHAUS-53 есть все необходимое для комфортного проживания одного человека или семейной пары без детей. В доме есть одна спальня, отдельная прихожая, ванная комната, кухня, совмещенная с просторной гостиной, в которой компактно разместились обеденная зона, ТВ-зона, каминная зона и кладовая. В будущем дом можно будет легко увеличить в длину, добавив необходимые спальни, гардеробные, сауну, дополнительные ванные комнаты и помещения для других целей. Возможно сделать эту модель двухэтажного дома
*Стоимость без учета НДС
Крыша: 307/357 мм = 5,40/6,39 м2 K/W, U = 0,1852/0,1565
Стены: 251/301 мм = 4,46/5,44 м2 K/W, U = 0,2242/0,1838
Пол: 285 мм = 4,10 м2 K/W, U = 0,2370
Окна: деревянный профиль 78 мм, U = 1,00
Технология — 1: ПВХ, двухкамерный стеклопакет, 44 мм.
Технология — 2: ПВХ, двухкамерный стеклопакет, 50 мм.
Крыша: 407/457 мм = 7.30 / 8.30 м2 K / W, U = 0.1370 / 0.1255
Стены: 301/351 mm = 5.40 / 6.39 м2 K / W, U = 0.1852 / 0.1565
Пол: 386 мм = 5.98 м2 K / W, U = 0.1672
Окна: деревянный профиль 78 мм, U = 1.00
Тип-1: кровля металлический профиль, фасад металлический профиль.
Тип-2: кровля кликфальц, фасад кликфальц.
Тип-3: кровля кликфальц, фасад дерево горизонтально.
Тип-4: кровля кликфальц, фасад дерево вертикально.
Тип-5: кровля кликфальц, фасад дерево микс.
Тип-6: кровля металлопрофиль, фасад металлопрофиль 1/2 + дерево горизонтально 1/2.
Тип-7: кровля металлопрофиль, фасад металлопрофиль 1/2 + дерево вертикально 1/2.
Тип-8: кровля металлопрофиль, фасад металлопрофиль 1/2 + дерево вертикально 1/2.
Тип-9: кровля кликфальц, фасад кликфальц 1/2 + дерево горизонтально 1/2.
Тип-10: кровля кликфальц, фасад кликфальц 1/2 + дерево вертикально 1/2.
Тип-11: кровля кликфальц, фасад кликфальц 1/2 + дерево микс 1/2.