Country house with a veranda.

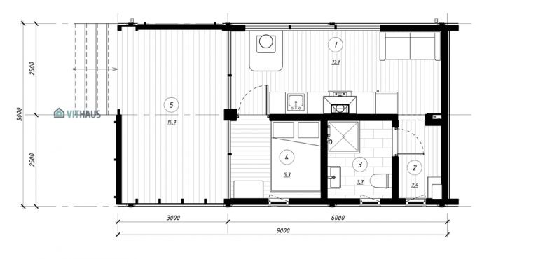
This small house has everything you need to live in. Small living room, kitchen, bedroom, bathroom with bath or shower, vestibule, summer veranda.

Dublhaus 26 can be used as a house for a family of two, a guest house, a campsite, a mini-house, a mobile home, a recreation center.

DUBLHAUS 26

*​Cost excluding VAT

PRICE:

The complete set of a typical house.

Roof: 307/357 mm = 5,40/6,39 m² K/W, U = 0,1852/0,1565 
Walls: 251/301 mm = 4,46/5,44 m² K/W, U = 0,2242/0,1838
Floor: 285 mm = 4,10 m² K/W, U = 0,2370
Windows: wooden profile 78 mm, U = 1,00

ПАНЕЛЬ_КРОВЕЛЬНАЯ_315мм-2в

1. Moisture-resistant plywood, 21 mm
2. Vapor barrier, 1 mm
3. Mineral wool insulation, 200 mm
4. Frame made of kiln-dried planed timber, 200 mm
5. Diffusion membrane, 1 mm
6. Cement-bonded particle board, 12 mm
7. Binding frame made of kiln-dried planed timber, 50 mm

Panel height: 2610 mm / 3110 mm

НАРУЖНАЯ_СТЕНА_194мм-(2610мм) НАРУЖНАЯ_СТЕНА_194мм-(3110мм)

  1. Softwood fiberboard, 25 mm
  2. Frame made of kiln-dried planed timber, 150 mm
  3. Mineral wool insulation, 150 mm
  4. Vapor barrier, 1 mm
  5. Oriented strand board (OSB), 12 mm

Panel height: 2610 mm / 3110 mm

НЕСУЩАЯ_СТЕНА_224x2610-2в НЕСУЩАЯ_СТЕНА_224x3110-2в

1. Oriented strand board (OSB), 12 mm
2. Frame made of LVL timber, 300 mm

Panel height: 2610 mm / 3110 mm

МЕЖКОМНАТНАЯ_СТЕНА_124мм-(2610мм)

МЕЖКОМНАТНАЯ_СТЕНА_124мм-(3110мм)

1. Oriented strand board (OSB), 12 mm
2. Frame made of kiln-dried planed timber, 100 mm
3. Mineral wool insulation, 100 mm
4. Oriented strand board (OSB), 12 mm

ПАНЕЛЬ_МЕЖЭТАЖНАЯ_235мм-2в

1. Moisture-resistant plywood, 21 mm
2. Diffusion membrane, 1 mm
3. Mineral wool insulation, 200 mm
4.. Frame made of kiln-dried planed timber, 200 mm
5. Vapor barrier, 1 mm
6. Oriented strand board (OSB), 12 mm

ПАНЕЛЬ_ПОЛА_-285мм-2в

1. Moisture-resistant plywood, 21 mm
2. Vapor barrier, 1 mm
3. Mineral wool insulation, 200 mm
4. Frame made of kiln-dried planed timber, 200 mm
5. Diffusion membrane, 1 mm
6. Cement-bonded particle board, 12 mm
7. Binding frame made of kiln-dried planed timber, 50 mm

Roof: 407/457 mm = 7.30/8.30 m2 K/W, U = 0.1370/0.1255 
Walls: 301/351 mm = 5.40/6.39 m2 K/W, U = 0.1852/0.1565 
Floor: 386 mm = 5.98 m2 K/W, U = 0.1672
Windows: profile 78 mm, U = 1.00

1. Moisture-resistant plywood, 21 mm
2. Batten made of kiln-dried planed timber, 50 mm
3. Softwood fiberboard, 25 mm
4. Mineral wool insulation, 300 mm
5. Frame made of LVL timber, 300 mm
6. Vapor barrier, 1 mm
7. Oriented strand board (OSB), 18 mm

Panel height: 2610 mm / 3110 mm

НАРУЖНАЯ_СТЕНА_244мм-(2610мм) НАРУЖНАЯ_СТЕНА_244мм-(3110мм)

  1. Softwood fiberboard, 25 mm
  2. Frame made of kiln-dried planed timber, 200 mm
  3. Mineral wool insulation, 200 mm
  4. Vapor barrier, 1 mm
  5. Oriented strand board (OSB), 12 mm

Panel height: 2610 mm / 3110 mm

НЕСУЩАЯ_СТЕНА_224x2610-2в НЕСУЩАЯ_СТЕНА_224x3110-2в

1. Oriented strand board (OSB), 12 mm
2. Frame made of LVL timber, 300 mm

Panel height: 2610 mm / 3110 mm

МЕЖКОМНАТНАЯ_СТЕНА_124мм-(2610мм)

МЕЖКОМНАТНАЯ_СТЕНА_124мм-(3110мм)

1. Oriented strand board (OSB), 12 mm
2. Frame made of kiln-dried planed timber, 100 mm
3. Mineral wool insulation, 100 mm
4. Oriented strand board (OSB), 12 mm

ПАНЕЛЬМЕЖ_ЭТАЖНАЯ-_335мм-2в

1. Moisture-resistant plywood, 21 mm
2. Diffusion membrane, 1 mm
3. Mineral wool insulation, 300 mm
4. Frame made of LVL timber, 300 mm
5. Vapor barrier, 1 mm
6. Oriented strand board (OSB), 12 mm

ПАНЕЛЬ_ПОЛА_385мм-2в

1. Moisture-resistant plywood, 21 mm
2. Vapor barrier, 1 mm
3. Frame made of LVL timber, 300 mm
4. Mineral wool insulation, 300 mm
5. Diffusion membrane, 1 mm
6. Cement-bonded particle board, 12 mm
7. Binding frame made of kiln-dried planed timber, 50 mm

Technology – 1: PVC, double-glazed insulation, 44 mm.

Technology – 2: PVC, double-glazed insulation, 50 mm.

  • Double-glazed windows filled with Argon – 44 mm / 50 mm.
  • Insulating glass break formula: 4ix16Arx4x16Arx4i / 4ix20Arx4x18Arx4i.
  • Factory-laminated or painted, graphite gray RAL 7024.
  • Concealed hinges Siegenia Titin AF.
  • The doors have reinforced hinges and a mortise lock.
  • Stained glass: reinforced double-glazed windows filled with Argon, tempered glass – 44 mm.
  • The formula for double-glazed stained glass windows: 4ix16Arx4x16Arx4i / 4ix20Arx4x18Arx4i.
  • Roof; 
  • Roof flashings; 
  • Facade; 
  • External window rows and edges; 
  • Windowsills; 
  • Drainage system; 
  • Glass fence; 
  • 3-step staircase, width 2.5 m.
  • Work – house installation; 
  • Work – exterior finishing.
  • installation of the foundation at the facility;
  • delivery from the seller’s warehouse to the facility;  
  • logistics to the installation site and accommodation for installers; 
  • rent a 25-ton crane for installation work.
  • Underfloor heating; 
  • Internal engineering networks; 
  • Interior finishing; 
  • Interior doors; 
  • Bathroom fixtures; 
  • Kitchen; 
  • Furniture.

PLAN:

The principle of having a machine build another machine lies at the heart of modern manufacturing.

FACADE:

The principle of having a machine build another machine lies at the heart of modern manufacturing.

3D HOUSE FLYOVER 360°:

Examine the house from all angles and appreciate every detail.

ANY QUESTIONS?

All rights reserved SIA VITHAUS, 2017-

Powered by IT Synergy.dev